Attefallshus med pulpettak
En av 2025s nyheter är vårt attefallshus Smögen som ger ett modernt och minimalistiskt utseende. Den lutande takytan gör det enklare att placera stora fönsterpartier vilket skapar ett bättre ljusinsläpp i huset du får också en bättre takhöjd och känsla av rymd som är en fördel med våra loft-lösningar. Attefallshuset Smögen går att anpassa i design, planlösning och funktion för att passa din unika stil


Bilder
Attefallshus med många möjligheter
Utforska olika utföranden av husmodellen Smögen och hitta inspiration för ditt drömhus. Alla våra extrahus är fullt anpassningsbara och skräddarsys efter dina önskemål på design och funktion, inifrån och ut.
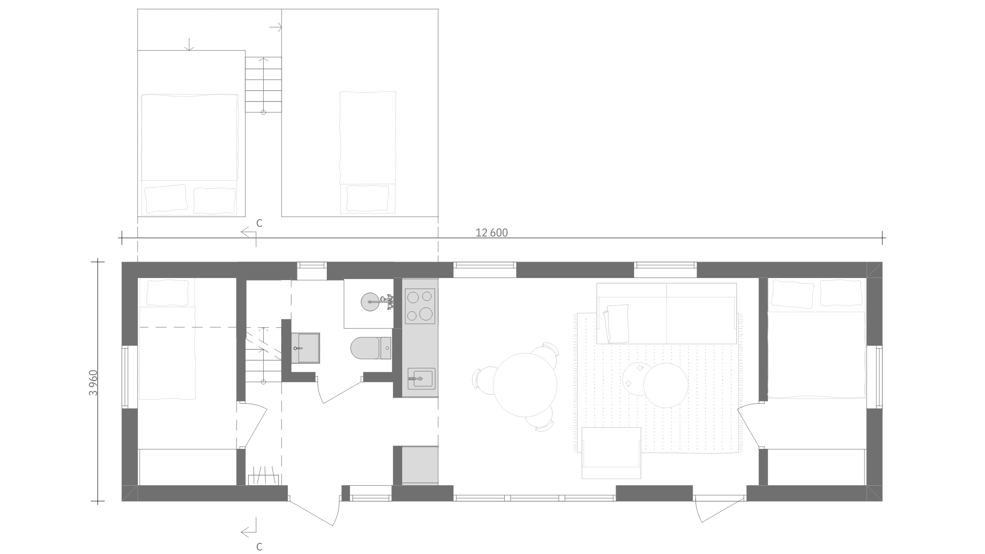
Attefallshus Planlösningar
Utforska våra planlösningar
Sju olika planlösningar för olika behov oavsett om du ska använda det som ett gästhus, arbetsplats eller som ett extra hem – så har våra arkitektritade planlösningar lösningen för dig.
Besök ett av våra visningshus
Upplev kvalitén och möjligheterna med ett hus från Extrahuset. Vi har visningshus över hela landet med möjligheter för både öppna och privata visningar. Här ser du kommande visningar för olika hus byggda av Extrahuset.

31 januari 2026, 11:00–13:00
Visningsdag i Kållered

7 februari 2026, 11:00–14:00
Visningsdag i Höllviken
Privat visning?
Vi på Extrahuset älskar att bygga unika attefallshus. Alla våra husmodeller går att fullt anpassa. Med våra arkitekter förverkligar vi dina idéer för både design och funktion.
Boka privat visningGrundpris för Smögen
Vi vill att du som kund ska känna trygghet och inte behöva uppleva några oförutsägbara kostnader. Priset du ser på hemsidan är ett komplett pris på ett 100 % nyckelfärdigt hus med vårt skräddarsydda mellankök samt badrum.
30 kvm
1 010 000 kr
40 kvm
1 290 000 kr
50 kvm
1 490 000 kr
Priser inkl. moms
Större storlek? Pris efter förfrågan.
Vad ingår i Extrahusets grundpris?
- Möjlighet att skräddarsy ditt hus.
- Fullutrustat badrumspaketet med kända varumärken
- Skräddarsytt mellankök ingår
Vanliga frågor om Attefallshus från Extrahuset
Intresseanmälan










