En modern fjällstuga anpassad för de svenska fjällen
Extrahuset har utvecklat fjällstugan Idre Modern i ett syfte att vara modern, praktisk och optimerad. Alltså är denna husmodell helt perfekt för den aktiva familjen uppe i nordens fjällandskap. Vi har lagt ett väsentligt stort fokus på att skapa en maximal komfort, design och funktion. Fjällstugan Idre Modern kommer med många specialanpassade detaljer för att skapa ett hem med en känsla av välkomnande och trivsamhet. Alla våra planritningar går att anpassa, vi skräddarsyr alltid som en del av servicen.


Bilder
Fjällstugor med många möjligheter
Utforska olika utföranden av husmodellen Idre Modern och hitta inspiration för ditt drömhus. Alla våra extrahus är fullt anpassningsbara och skräddarsys efter dina önskemål på design och funktion, inifrån och ut.
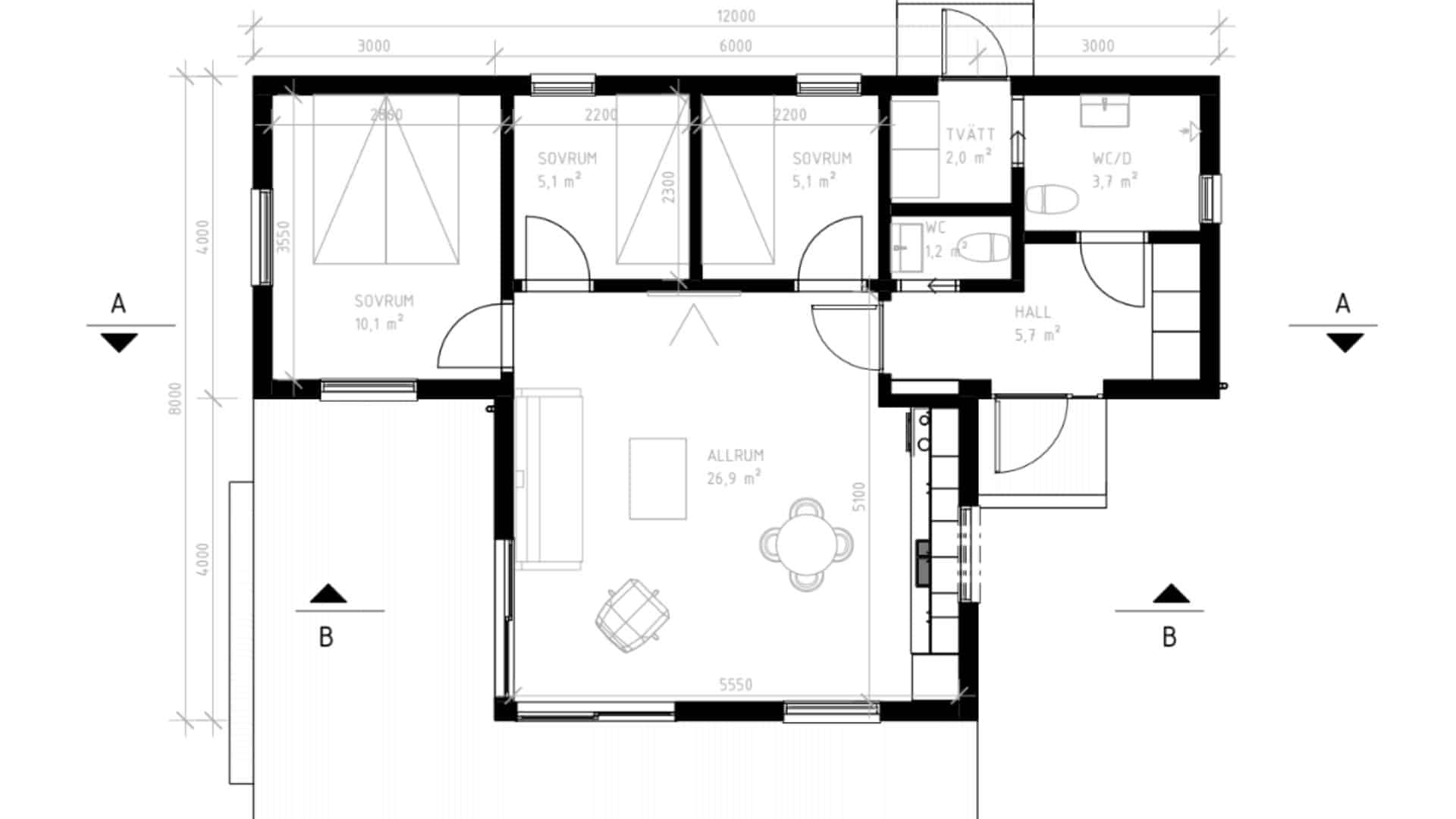
Planlösningar
Din unika planlösning
Eftersom våra hus är fullt anpassningsbara utifrån dina önskemål finns stora möjligheter att skapa din unika planlösning. Här finns exempel på planlösningar att både utgå ifrån och inspireras av.
Besök ett av våra visningshus
Upplev kvalitén och möjligheterna med ett hus från Extrahuset. Vi har visningshus över hela landet med möjligheter för både öppna och privata visningar. Här ser du kommande visningar för olika hus byggda av Extrahuset.

25 oktober 2025, 11:30–14:00
Visningsdag i Höllviken

26 oktober 2025, 11:00–15:00
Visningsdag i Borlänge
Privat visning?
Vi på Extrahuset älskar att bygga unika extrahus. Alla våra husmodeller går att fullt anpassa. Med våra arkitekter förverkligar vi dina idéer för både design och funktion.
Boka privat visningGrundpris för Idre Modern
Vi vill att du som kund ska känna trygghet och inte behöva uppleva några oförutsägbara kostnader. Priset du ser på hemsidan är ett komplett pris på ett 100 % nyckelfärdigt hus med vårt skräddarsydda mellankök samt badrum.
72 kvm
2 100 000 kr
Priser inkl. moms
Större storlek? Pris efter förfrågan.
Vad ingår i Extrahusets grundpris?
- Möjlighet att skräddarsy ditt hus.
- Fullutrustat badrumspaketet med kända varumärken.
- Skräddarsytt & komplett kök ingår.
Vanliga frågor om fjällstugor från Extrahuset
Intresseanmälan


