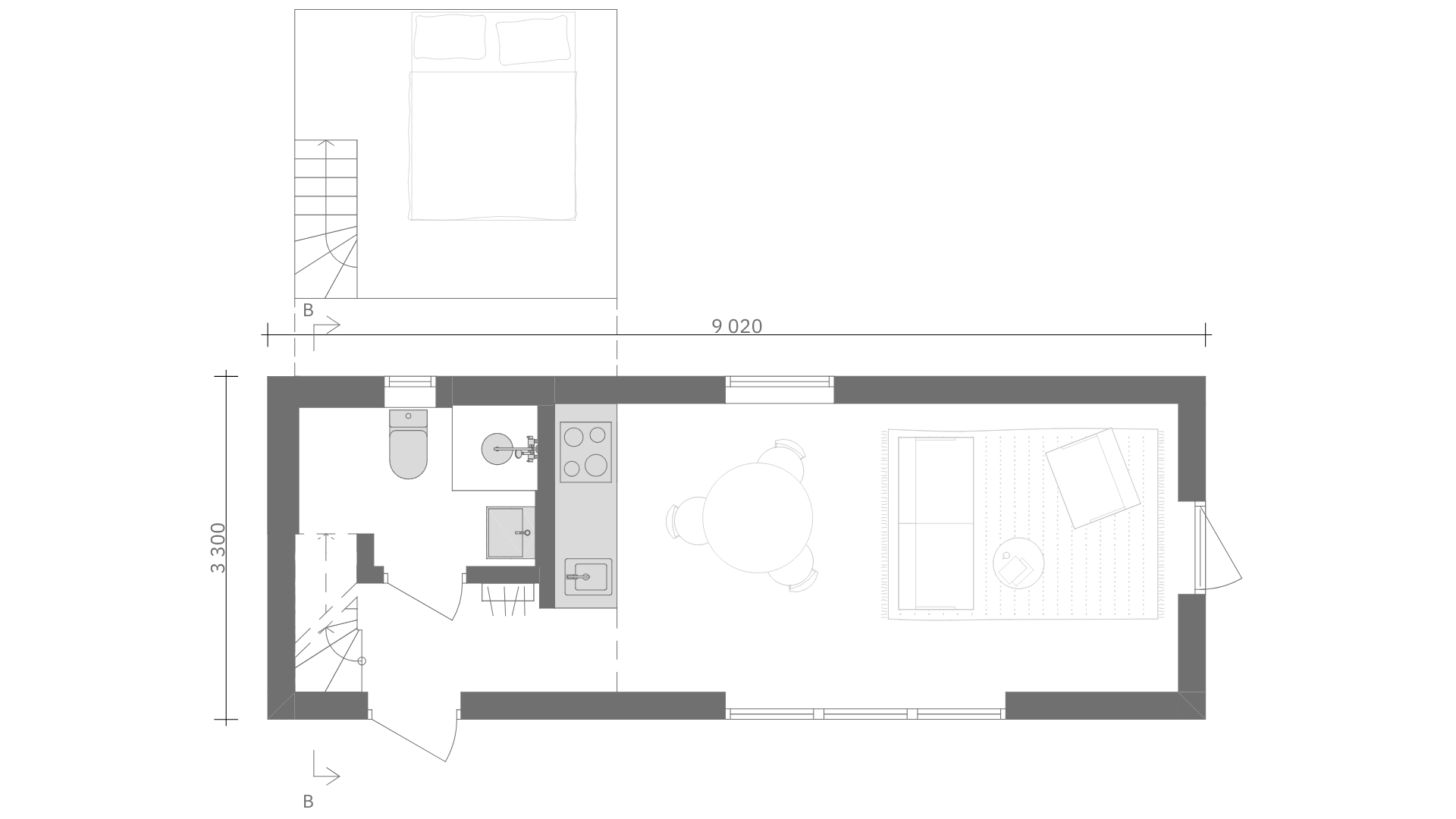
Planlösning Attefallshus
Studio Slim
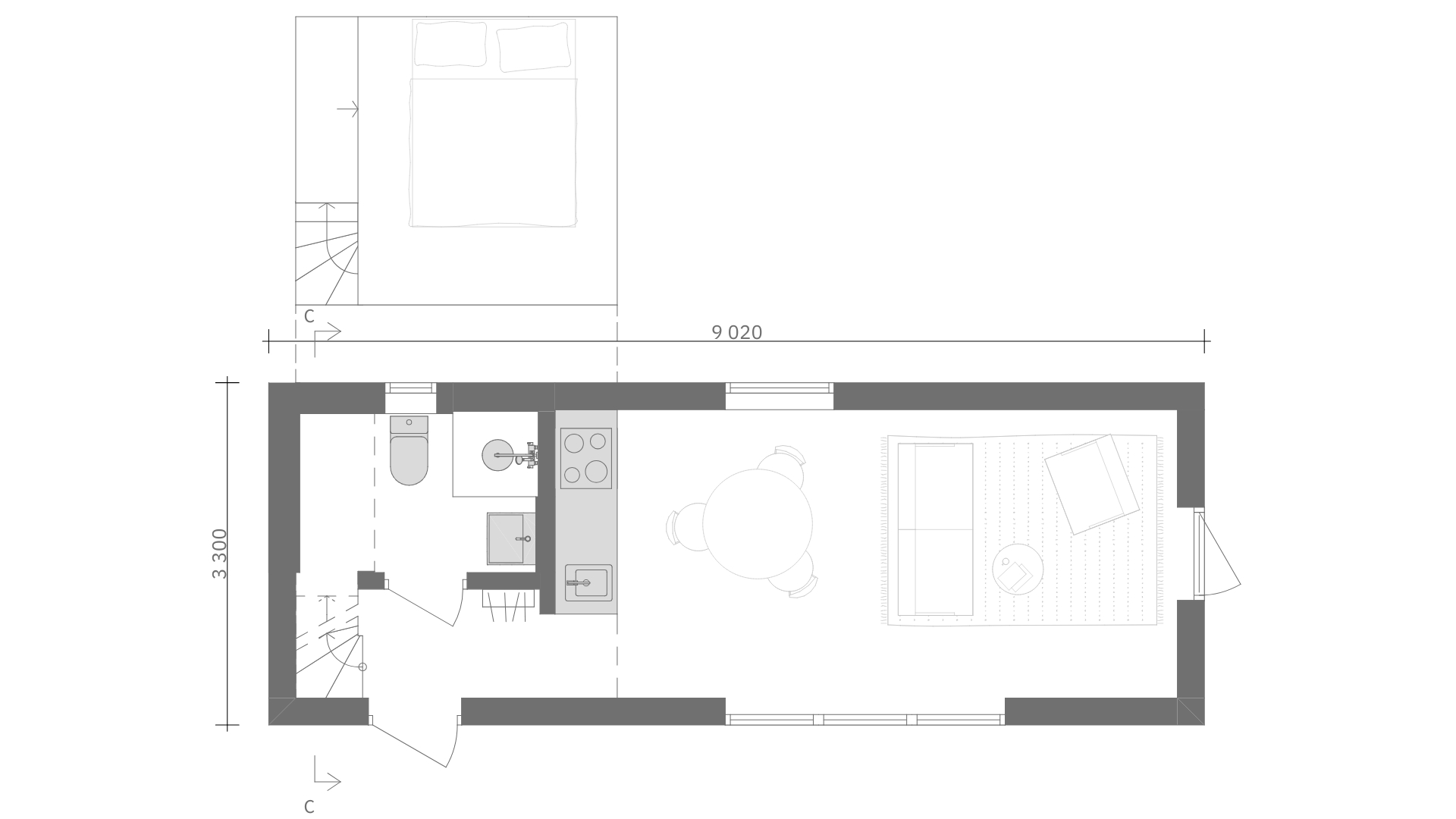
Planlösning Attefallshus
Studio Slim
Studio Slim är en smalare variant av vår Studio-kollektion, med en öppen planlösning som passar alla våra husmodeller. Med generösa sällskapsytor är Studio Slim det självklara valet för dig som söker ett attefallshus med rymd, ljus och plats för umgänge. Välj mellan stege, trappa eller ståloft i planlösningen.
Kontakta oss


