Attefallshus #815
Anpassad från husmodellen Uppsala
Kundmodellen Attefallshus #815 är anpassad tillsammans med kund och våra arkitekter genom inspiration av vår husmodell Uppsala.


Bilder
Attefallshus anpassat efter kund
Inspireras av bilder på kundmodellen Attefallshus #815 och hitta inspiration för ditt drömhus. Alla våra extrahus är fullt anpassningsbara och skräddarsys efter dina önskemål på design och funktion, inifrån och ut.
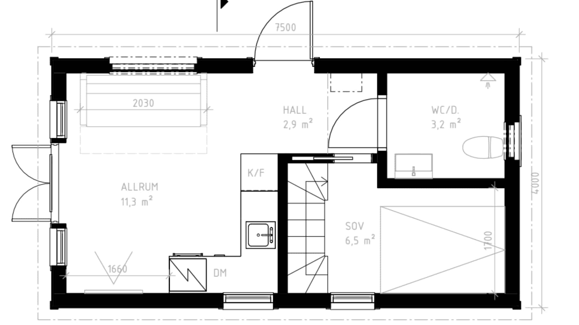
Planlösning
Attefallshus #815
Eftersom våra hus är fullt anpassningsbara utifrån dina önskemål finns stora möjligheter att skapa din unika planlösning. Nedan finner du vilken planlösning Attefallshus #815 valde att anpassa sitt hus med.
Vanliga frågor om Attefallshus från Extrahuset
Intresseanmälan

