Kan jag bygga ett attefallshus på 40 kvm?
Att bygga ett attefallshus är ett smart och flexibelt sätt att utnyttja sin tomt utanför detaljplan kan du också bygga 40 kvm. Oavsett om du önskar ett gästboende, ett uthyrningsobjekt, ett fritidshus eller en liten permanent bostad. Med ett attefallshus på 40 kvm får du ut det bästa av två världar: Betydligt mer utrymme än standardmodellen på 30 kvm, samtidigt som du kan undvika den fullskaliga bygglovsprocessen ifall du bor utanför detaljplan.

Ett av våra attefallshus – Orust 40 kvm.
10 kvm extra gör stor skillnad
De extra 10 kvadratmeterna ger faktiskt större möjligheter än man först tror. Med 40 kvm får du enkelt plats med ett separat sovrum, ett rymligt badrum och ett fullt utrustat kök. Dessutom finns det utrymme för ett bekvämt och stort vardagsrum som man i många fall saknar i ett 30 kvm hus. Men det stannar inte där, du får även fler möbleringsalternativ och bättre plats för exempelvis förvaring.
För att även göra ännu mer skillnad i ett 40 kvadratmetershus drar vi nytta av loftet, ett smart loft är nämligen ett effektivt sätt att öka användbar yta utan att ta från det öppna intrycket på markplan. På 40 kvm får du möjlighet att skapa separata sovplatser eller utrymme för förvaring, vilket ger plats för sociala ytor på nedervåningen.
Byggnadsregler och förutsättningar, vad gäller?
Om din fastighet ligger utanför detaljplanerat område har du större frihet att bygga attefallshus. Där gäller inte samma restriktioner som inom detaljplan. Framför allt är det utanför detaljplan du kan bygga större än 30 kvm. Där kan du till exempel uppföra ett attefallshus på 40 kvm istället. Dessutom kan du höja taknockshöjden till 4,5 meter från medelmarknivån. Detta ger större rymd invändigt och möjliggör ett högre loft. Sammanfattningsvis innebär det fler alternativ att anpassa huset efter dina behov. Det vill säga: större frihet, mer volym och bättre möjligheter.
Bor du inom detaljplan kan du fortfarande bygga ett attefallshus på upp till 30 kvm.
Vill du däremot bygga större finns det fortfarande en möjlighet. Om 40 kvm lockar dig kan det vara värt att ta nästa steg. Du kan nämligen bygga 40 kvm även inom detaljplanerat område. Men då krävs det att du ansöker och får ett godkänt bygglov från kommunen. Det innebär lite mer arbete, men ger dig det extra utrymme du önskar.
Fler användningsområden än du tror
Ett attefallshus på 40 kvm är inte bara en extrabostad, det är en investering.
Använd det som:
- Gästhus eller generationsboende.
- Uthyrningsboende för passiva inkomster.
- Fritidshus eller permanent bostad.
- Kontor eller ateljé i hemmiljö.
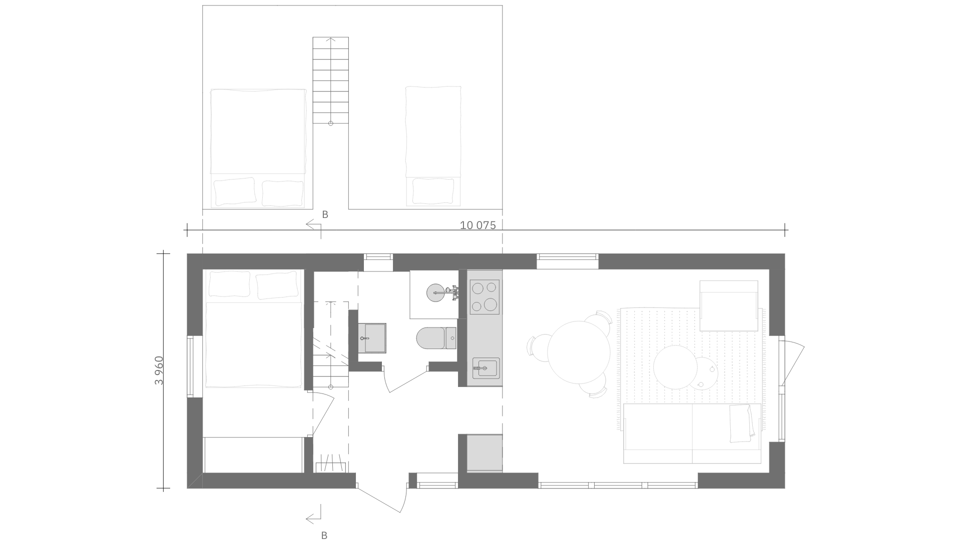
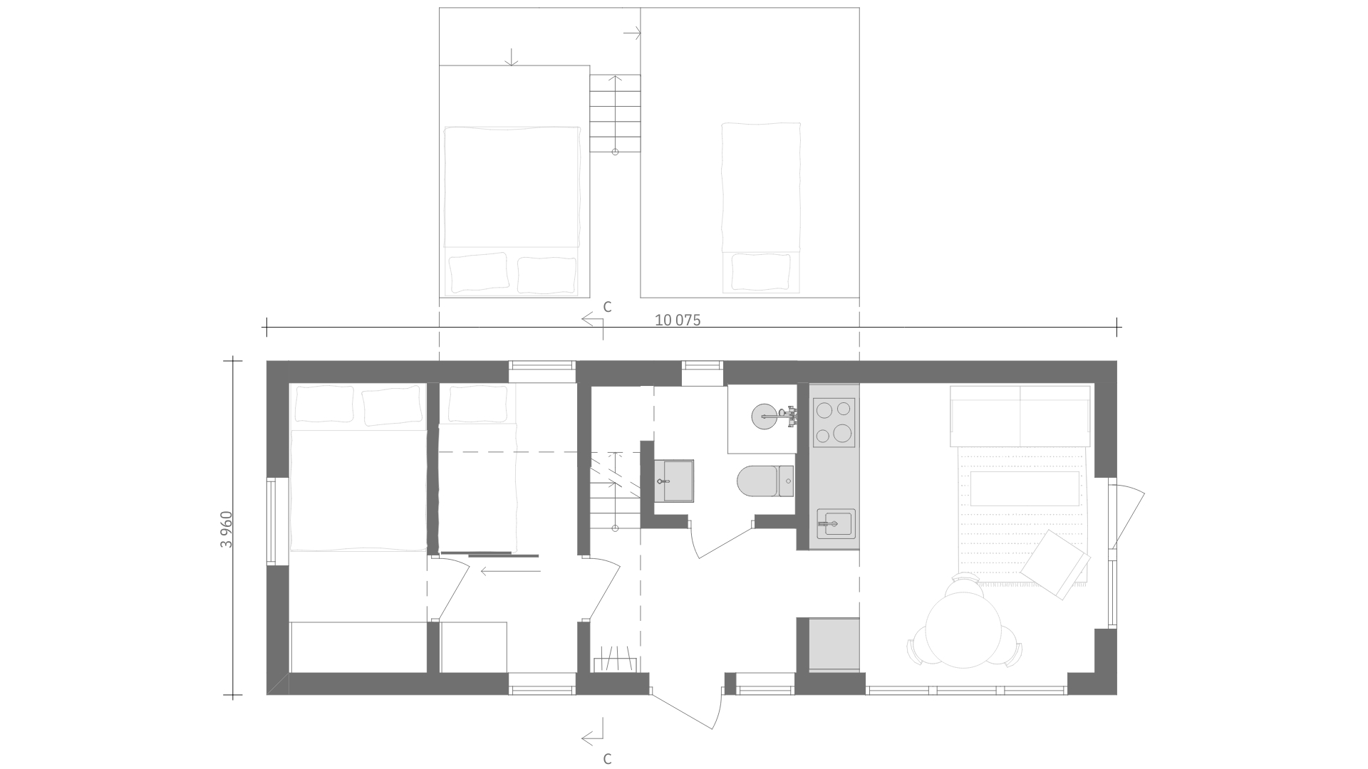
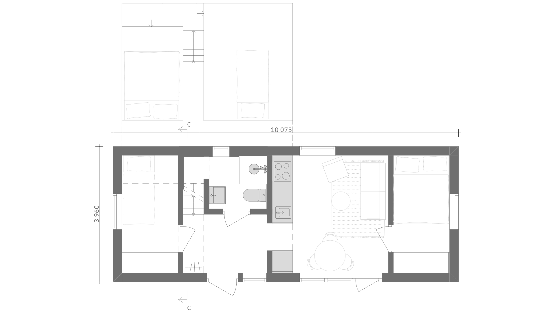
Flexibla planlösningar på 40 kvm
Planlösningarna är genomtänkta för att skapa en balans mellan privatliv och gemenskap. Välj mellan våra varianter Sovrum – för dig som söker ett hus med ett sovrum och öppna gemensamma sällskapsytor eller våra två alternativ på Family – Planlösningen som maximerar antalet bäddar med två sovrum. Family 1 har sovrummen på samma sida medan Family 2 har sovrummen på vardera sida för mer avskildhet.
Allt du vinner på att bygga ett attefallshus på 40 kvm med Extrahuset
Letar du efter ett smart sätt att utöka boytan men är trött på onödig byråkrati? Då finns en lösning. Våra flexibla bostadslösningar gör det enkelt att skapa mer utrymme, snabbt och effektivt. Oavsett om du vill bo själv, hyra ut eller skapa ett extra rum, finns rätt modell för dig.
Utanför detaljplan är processen lätt men även inom detaljplan kan vi hjälpa dig med byråkratin som krävs med kommunen för att se över dina möjligheter. Detta för att du ska fokusera på det roliga med ett husbygge.
Beroende på tomt och behov kan du dra nytta av olika regler och slippa bygglov i vissa fall.
Vilket ger dig både större frihet och snabbare byggstart, utan långa handläggningstider.
Planlösningarna är noggrant utformade för att maximera varje kvadratmeter inomhus.
Du får plats med kök, badrum, förvaring och sociala ytor. Allt inom en kompakt yta.
Utöver det ger den smarta designen god funktionalitet utan att kompromissa med komfort eller stil.
Loft ingår alltid i våra hus som standard – För oss är detta en nödvändighet för att skapa extra utrymme. På så vis ökar du användbar boyta utan att behöva utöka byggytan. Sammantaget får du både flexibilitet, funktion och en lösning som passar dina unika behov.
Kontakta oss








