Det extra breda attefallshuset
Vi har utvecklat Attefallshuset Båstad med ytterst noggranna detaljer. Allt för att skapa en förstklassig och komfortabel boendeupplevelse för dig som husägare. Husmodellen Båstad har vackra klassiska drag exteriört och en smart planerad design interiört. Huset har stora och breda fönster som ger dig en perfekt sikt utåt. Båstad är alldeles perfekt för tomten med utsikt över havet och ger dig som ägare unika möjligheter att kunna betrakta din omgivning. Alla planritningar går att anpassa, vi skräddarsyr alltid som en del av servicen.


Bilder
Attefallshus med många möjligheter
Utforska olika utföranden av husmodellen Båstad och hitta inspiration för ditt drömhus. Alla våra extrahus är fullt anpassningsbara och skräddarsys efter dina önskemål på design och funktion, inifrån och ut.
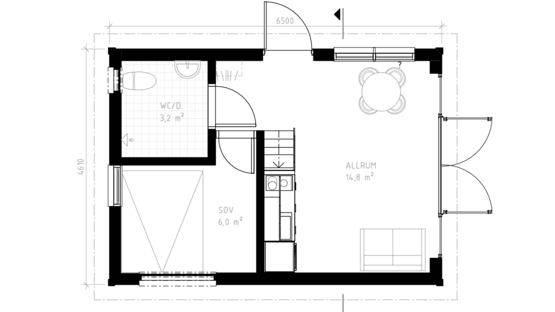
Planlösningar
Din unika planlösning
Eftersom våra hus är fullt anpassningsbara utifrån dina önskemål finns stora möjligheter att skapa din unika planlösning. Här finns några exempel på planlösningar att både utgå ifrån och inspireras av.

Planlösning #796
Besök ett av våra visningshus
Upplev kvalitén och möjligheterna med ett hus från Extrahuset. Vi har visningshus över hela landet med möjligheter för både öppna och privata visningar. Här ser du kommande visningar för olika hus byggda av Extrahuset.

15 november 2025, 11:30–14:00
Visningsdag i Borrby

16 november 2025, 11:00–15:00
Visningsdag på Värmdö
Privat visning?
Vi på Extrahuset älskar att bygga unika attefallshus. Alla våra husmodeller går att fullt anpassa. Med våra arkitekter förverkligar vi dina idéer för både design och funktion.
Boka privat visningGrundpris för Båstad
Vi vill att du som kund ska känna trygghet och inte behöva uppleva några oförutsägbara kostnader. Priset du ser på hemsidan är ett komplett pris på ett 100 % nyckelfärdigt hus med vårt skräddarsydda mellankök samt badrum.
30 kvm
1 095 000 kr
Priser inkl. moms
Större storlek? Pris efter förfrågan.
Vad ingår i Extrahusets grundpris?
- Möjlighet att skräddarsy ditt hus.
- Fullutrustat badrumspaketet med kända varumärken
- Skräddarsytt mellankök ingår
Vanliga frågor om Attefallshus från Extrahuset
Intresseanmälan
