Arkitektritat attefallshus för fjällmiljö
Storlien är ett av två attefallshus som vi har anpassat för fjällmiljö och som dessutom finns i två olika utföranden – med eller utan sovrum. Huset är arkitektritat med en rymlig hall, något som är viktigt både i större och mindre hus i denna miljö. Hallen är utformad som en aktiv zon som underlättar på- och avtagning av skidutrustning och samtidigt skapar utrymme för förvaring av delar av utrustningen.


Bilder
Attefallshus med många möjligheter
Utforska olika utföranden av husmodellen Storlien och hitta inspiration för ditt drömhus. Alla våra extrahus är fullt anpassningsbara och skräddarsys efter dina önskemål på design och funktion, inifrån och ut.
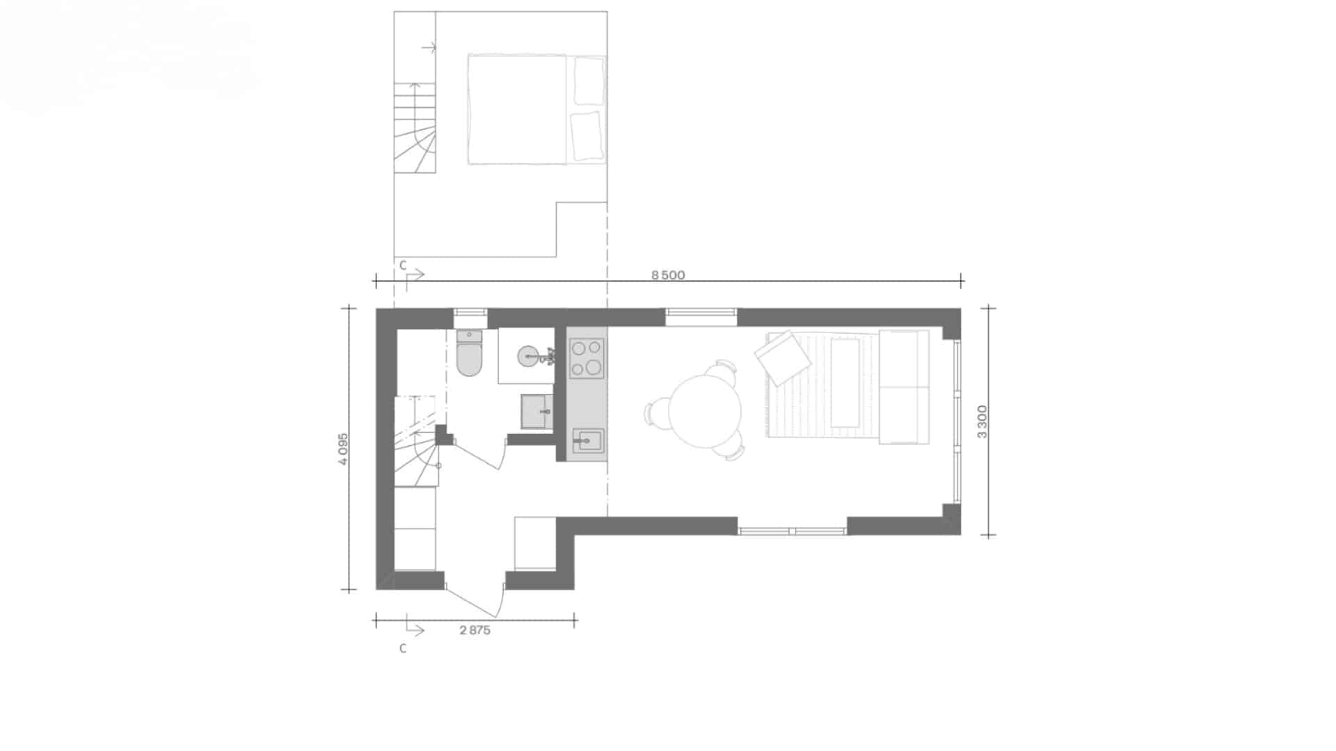
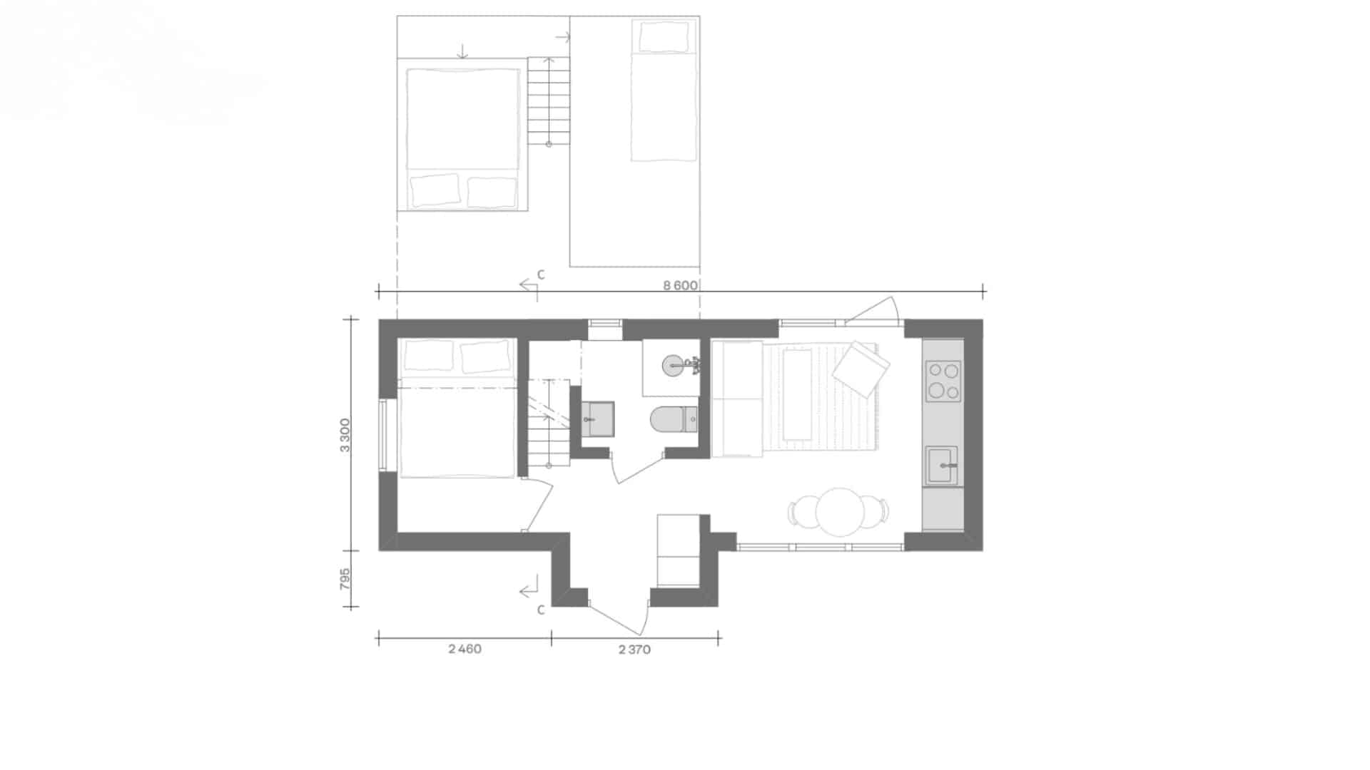
Planlösningar
Din unika planlösning
Eftersom våra hus är fullt anpassningsbara utifrån dina önskemål finns stora möjligheter att skapa din unika planlösning. Här finns ett exempel på planlösning att både utgå ifrån och inspireras av.
Besök ett av våra visningshus
Upplev kvalitén och möjligheterna med ett hus från Extrahuset. Vi har visningshus över hela landet med möjligheter för både öppna och privata visningar. Här ser du kommande visningar för olika hus byggda av Extrahuset.

25 april 2026, 11:00–14:00
Visningsdag på Sturkö, Karlskrona
Privat visning?
Vi på Extrahuset älskar att bygga unika attefallshus. Alla våra husmodeller går att fullt anpassa. Med våra arkitekter förverkligar vi dina idéer för både design och funktion.
Boka privat visningGrundpris för Storlien
Vi vill att du som kund ska känna trygghet och inte behöva uppleva några oförutsägbara kostnader. Priset du ser på hemsidan är ett komplett pris på ett 100 % nyckelfärdigt hus med vårt skräddarsydda mellankök samt badrum.
30 kvm
1 050 000 kr
40 kvm
1 330 000 kr
50 kvm
1 530 000 kr
Priser inkl. moms
Större storlek? Pris efter förfrågan.
Vad ingår i Extrahusets grundpris?
- Möjlighet att skräddarsy ditt hus.
- Fullutrustat badrumspaketet med kända varumärken.
- Skräddarsytt mellankök ingår.
Vanliga frågor om Attefallshus från Extrahuset
Intresseanmälan

