Attefallshus #4137
Anpassad från husmodellen Orust
Kundmodellen Attefallshus #4137 är anpassad tillsammans med kund och våra arkitekter genom inspiration av vår husmodell Orust.


Bilder
Attefallshus anpassat efter kund
Inspireras av bilder på kundmodellen Attefallshus #4137 och hitta inspiration för ditt drömhus. Alla våra extrahus är fullt anpassningsbara och skräddarsys efter dina önskemål på design och funktion, inifrån och ut.
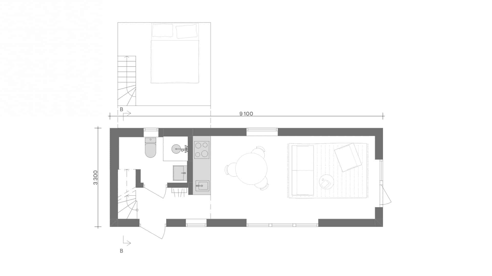
Planlösning
Attefallshus #4137
Eftersom våra hus är fullt anpassningsbara utifrån dina önskemål finns stora möjligheter att skapa din unika planlösning. Nedan finner du vilken planlösning Attefallshus #4137 valde att anpassa sitt hus med.
Intresseanmälan

