Attefallshus #826
Anpassad från husmodellen Åre
Kundmodellen Attefallshus #826 är anpassad tillsammans med kund och våra arkitekter genom inspiration av vår husmodell Åre.


Bilder
Attefallshus anpassat efter kund
Inspireras av bilder på kundmodellen Attefallshus #826 och hitta inspiration för ditt drömhus. Alla våra extrahus är fullt anpassningsbara och skräddarsys efter dina önskemål på design och funktion, inifrån och ut.
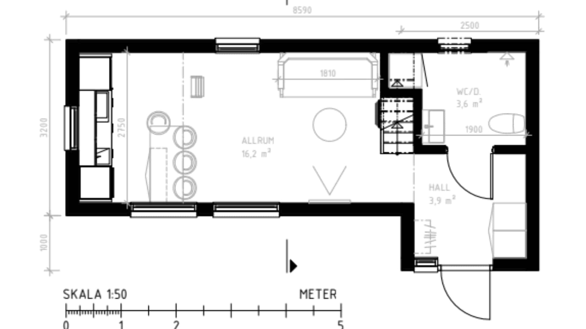
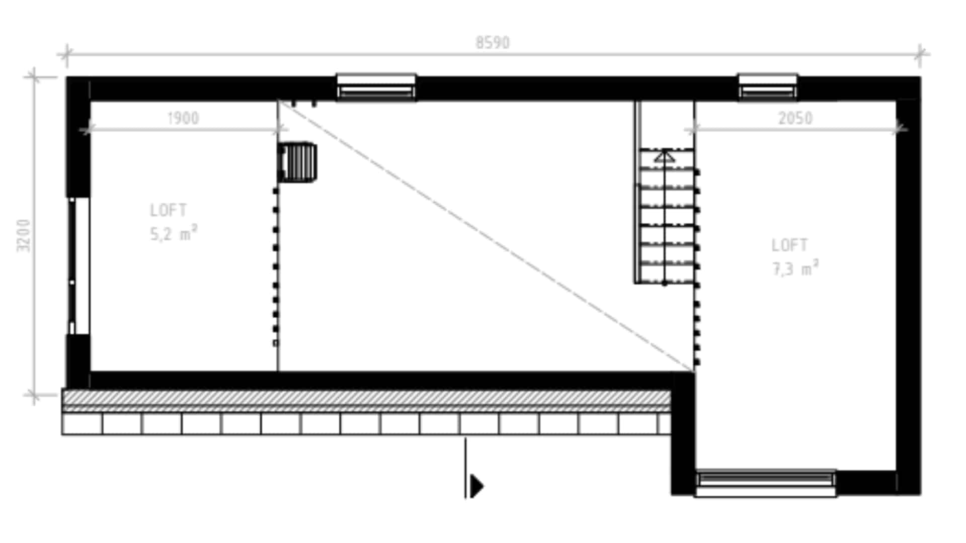
Planlösning
Attefallshus #826
Eftersom våra hus är fullt anpassningsbara utifrån dina önskemål finns stora möjligheter att skapa din unika planlösning. Nedan finner du vilken planlösning Attefallshus #826 valde att anpassa sitt hus med.
Vanliga frågor om Attefallshus från Extrahuset
Intresseanmälan

